Helping Kāinga Ora and the community to reduce, recycle, and reuse

22 October 2020

Construction waste salvaged from a Kāinga Ora project in West Auckland is used to help create a community marketplace.

Kāinga Ora’s development, Highbury Triangle, is playing an important part in the regeneration of Avondale town centre by building a new housing development with approximately 236 homes, most of which will be purpose-built for older people.

The landscape design for this significant project has been undertaken by Boffa Miskell, through a collaborative design process with the client, Kāinga Ora and Architectus, the project architects.

Project manager Emma Todd says, “Key design principals of community living, place making, designing for use, biodiversity and cultural engagement are driving a holistic design for Highbury Triangle and culminating in well-designed places that weave together buildings, networks and natural landscapes, creating a seamlessly integrated environment.”

The goal is to provide a distinctive and recognisable identity for this new community and to generate a sense of pride and sense of individuality in the surrounding environment, encouraging residents take ownership of their living environment.

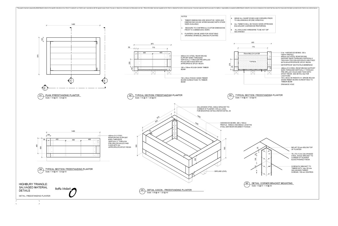
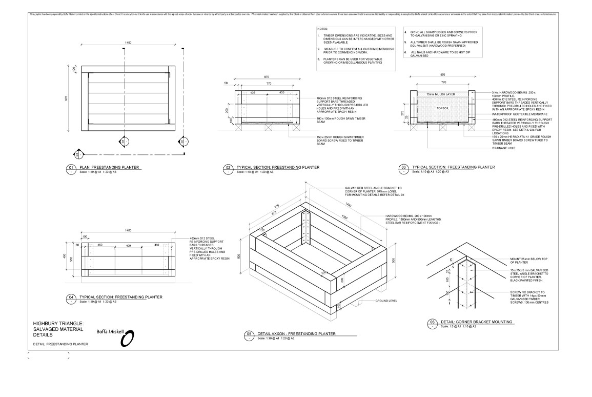
Re- use of materials on site is a key initiative for the project. This is being led by Trow Group, with the re-use of site materials such as bricks from the existing buildings; and tree logs from felled exotic trees, to be re-purposed as natural play elements.

“Materials from Highbury Triangle site will also be used to build a pop-up market at the Elm Street site, another Kāinga Ora development where Boffa Miskell are leading the landscape design,” Emma says. “To support this initiative, we have provided detailed drawings for planter boxes and pergola structures to Trow Group so they can use the site materials to build these elements on site.”

Find out more

Read about it in Stuff

Learn more about TROW Group

See Highbury Triangle on Kāinga Ora’s website

For further information please contact Emma Todd or Rangitahi Kawe